1、整体设备设计寿命 20 年,吸附塔设计寿命 20 年。

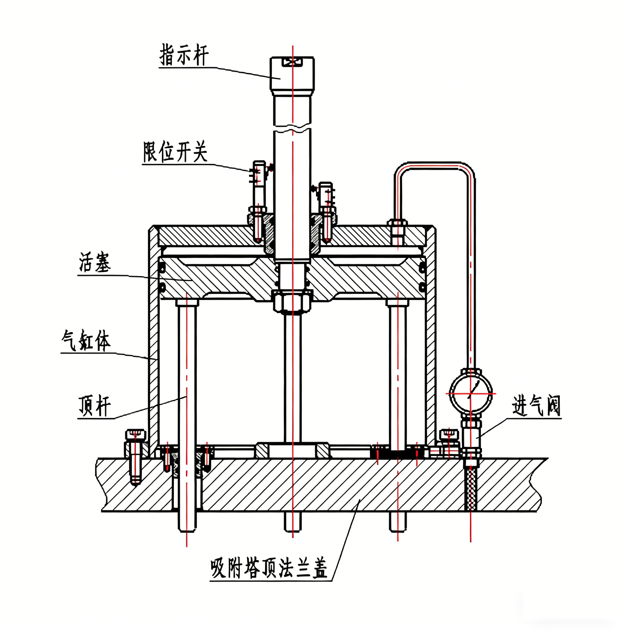
2、分子筛使用寿命大于 10 年,独有的专利气缸压紧装置保证分子筛 10 年内不粉化、不喷筛。

3、独特的专利节能工艺流程更节能,氮气纯度 99.9%,吸附压力 0.7mpa,0℃,0.101Mpa 状态下空氮比≤3:1。

4、确保能真正达到 1000Nm3/h 流量和纯度 99.9%。

5、我司采用新型高效分子筛,型号:CMS-330,吸附时间 40-60s,效率高,能耗低,寿命长,强度高,不易粉化。

6、专利管道式气动阀,全不锈钢 304 材质,阀体设计寿命和质保 10 年以上,高频率运行可达 300 万次以上。

7、专利负荷适应功能,流量调节范围达到 30%-110%,让客户用气更灵活、更节能,为人类节能减排、保护环境做出应有的贡献。

8、专业做制氮机 20 余年,丰富完善的服务体系,售后响应到达现场时间 2 小时,为客户安全生产保驾护航。

9、出合格氮气时间短,停机再开机无延时,即刻出合格氮气。
10、智能,无人值守,智能启停。

11、操作简单,维保费用低,10 年无需更换分子筛。
综上,捷气品牌本着快捷供气、节能用气的原则,为客户提运行稳定的节能设备竭尽全力,以下是公司的技术支持、品牌、技术介绍。
山东捷气气体设备有限公司 地址:山东省济南市章丘区龙跃街2100号产发先进装备智造港 备案号:鲁ICP备2020034881号-1
免责声明:网站部分图片和内容来源于网络,如有问题请及时与我们联系。